629 N Monroe St

The Towns on North Monroe

Modern Townhomes • Walkable Living • Heart of Arlington

Just a 5-minute walk to the Virginia Square Metro, these three boutique townhomes offer the perfect blend of luxury, walkability, and quiet residential charm. Enjoy off-street parking, spacious backyards, and a prime location steps from parks, shops, and restaurants.

The Homes

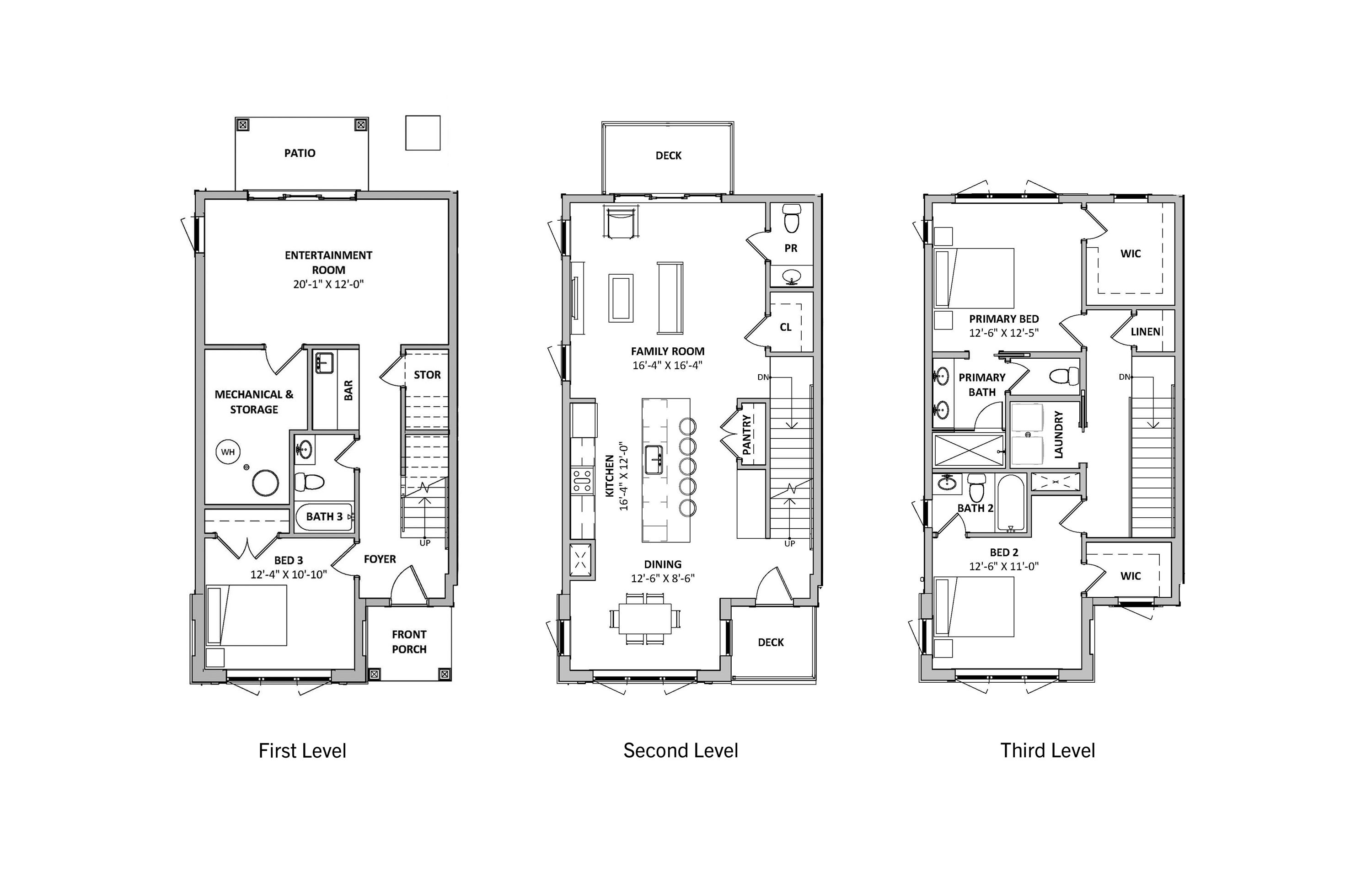
Each residence offers 3 bedrooms, 3.5 baths, and ~2,400 sq ft of beautifully curated living space. Thoughtful design includes a spacious walk-in primary suite closet, double-bowl vanity in the primary bath, full-size washer & dryer, a private grilling deck off the main level, and premium materials throughout.

Built by Midtown Partners, sister company to long-standing Arlington builder Classic Cottages, these homes showcase exceptional craftsmanship and quality.

Highlights

  • 5-minute walk to Virginia Square Metro
  • 10-minute walk to Clarendon nightlife, shopping & dining
  • 1 block to Maury Park (tennis courts, playground & open green space)
  • Off-street parking for every home
  • No HOA fees

Get First Access

Join the VIP List to receive pricing, launch timelines, and availability before public release.

This field is for validation purposes and should be left unchanged.
This helps us send you the most relevant floor plans and pricing.

Sample Floor Plans for 3-Bedroom Townhome

Site Plan for Townhomes in Virginia Square

Ready for more information?

Connect with our team today to get the latest on pricing and availability.

© 2026 Copyright Midtown Partners. All rights reserved.